東リ タイルカーペット GA400

モダンでおしゃれなインテリアショップ インテリア本舗
インテリア本舗サイトマップ
なっちゃん本舗にメール
インテリア本舗トップページ 東京インテリアショップ インテリア本舗 提携企業 インテリア本舗 サイトマップ インテリア本舗 ご利用案内 なっちゃん本舗にメール インテリア本舗 リンク
インテリア本舗へようこそ!
玄関用ミニ風水鏡 八角形鏡 ミニ風水鏡(おまけ付)
\2,980(消費税込)
5,000個以上完売!テレビ番組でも紹介され話題騒然!超豪華2大特典付き(風水盛り塩セット&特製置き台)です。大き目のサイズの風水鏡をご希望の方には、こちらの風水鏡もあります。
特集
ソファー・ベッド
テーブル・椅子
収納家具
ファブリック
生活家電
食器・調理器具
インテリア風水
リラクゼーション
インテリア雑誌


東リ タイルカーペット GA400


\315


商品説明

東リ タイルカーペット GA400シリーズ

オフィスや店舗など様々なシーンで活躍するタイルカーペット。

タイルカーペットならではの簡単施工で簡単な施工で見違えるようなオフィスになります。
カラーは全26色からお選びいただけます。
1枚当たり325円のコストパフォーマンスに優れたタイルカーペット。



実績ナンバー1の東リ タイルカーペットです。

コストパフォーマンスに優れ、会議室やオフィス空間などに最適です。


特長

●酸性の汚れ(ジュース、コーヒーなど)に対し優れた防汚性能を発揮します。


●含水率が低いため乾燥が早く水切れの良い商品です。


●伸縮性(寸法安定率)・耐久性に優れているので床暖房にも使用できます。


●防音効果・防虫効果に優れています。


●制電加工・防炎加工

組成:原着ポリプロピレン100%
全厚:約6mm
サイズ:50cm×50cm



ご注文は16枚以上4枚単位にて承ります。

カラーは4枚単位でお選びください。

全国送料無料です。
(メーカー便)
お支払い方法は銀行振り込み又は郵便振替又はクレジットカード決済となります。

※代引きの場合は16枚単位で1050円の送料がかかります。



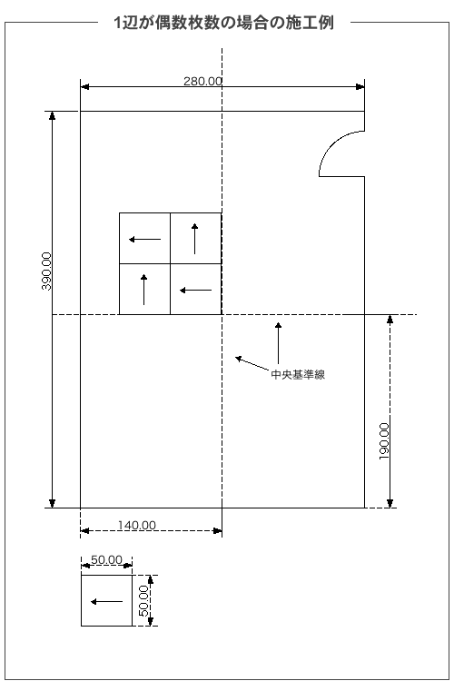
■タイルカーペット施工方法
施工方法は市松貼りが基本です。
(下記参照)
縦、横と順番に貼る方法を市松貼りといいます。


まず、お部屋全体の割付(わりつけ)を行います。

お部屋全体の縦の長さと横の長さをそれぞれ50cm(タイルカーペットの大きさ)で割り、偶数枚数の場合と奇数枚数の場合で基準線が異なります。

お部屋の横幅が280cm、長さが390cmの場合ですと、
横幅280cm(6枚)、長さ390cm(8枚)で合計48枚が最低必要枚数となります。

1辺が偶数枚数の場合の施工例を参照してください。


お部屋の横幅が328cm、長さが440cmの場合ですと、
横幅328cm(7枚)、長さ440cm(9枚)で合計63枚が最低必要枚数となります。

1辺が奇数枚数の場合の施工例を参照してください。


※それぞれ最低必要枚数に加え、予備を数枚ご用意ください。


お部屋の中央に縦と横の基準線を引き、それに併せて縦、横と順に市松貼りで施工します。

お部屋を大きく4分割して施工していただくと、施工しやすくなります。




お部屋の中央に縦と横の基準線を引き、その基準線から縦横それぞれ25cmずらしたところに施工用の基準線(赤色の線)を引きます。
それに併せて縦、横と順に市松貼りで施工します。
お部屋を大きく4分割して施工していただくと、施工しやすくなります。



タイルカーペットは汚れた場合など部分的に貼り替えが可能です。

洗い替えや予備など数枚を余分にご購入頂くことをおすすめいたします。


スポンサード リンク


カーペット・ラグ・敷物 売れ筋人気商品


カーペット・ラグ・敷物 その他の商品

Copyright (c) natchan-honpo.com All Rights Reserved.